architectenbureau projectenstedenbouwwoningbouwutiliteitsbouwinterieurbeeldende kunststudies / prijsvragenin ontwikkelinginspiratiecontacthome

Bijsterveldenlaan, Tilburg,"Residentie Dongedal"

TOELICHTING

 

Opgave
Prijsvraag voor een ontwerp van 15 a 20 gestapelde koop-wooneenheden in een zelf te bedenken woningtype gesitueerd in een ecologische waardevol gebied langs het Dongedal.

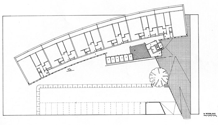
Stedenbouwkundig
De prijsvraaglocatie is gesitueerd aan het Dongedal, een ecologisch waardevol gebied op de grens tussen cultuur en natuur, deel uitmakend van bestemmingsplan ‘De Kievit’.
Bebouwing op deze locatie is door ons beschouwd als ‘stad’ die veroverd is op het ‘land’. Dit specifiek stuk natuur, door stad omgeven, wordt niet slechts ontzien maar zelfs gekoesterd door diezelfde stad. Niet alleen een markant punt creëren langs de Donge maar juist een plek in de stad vormgeven van waaraf men uit kan kijken over het ‘land’ was even zo belangrijk.
De reeds aanwezige spanning tussen stad en land wordt in het ontwerp expliciet tot uitdrukking gebracht door het woongebouw op een verhoogd plateau te plaatsen. Zicht op een bijzonder ‘natuurlijk’ landschap, gecombineerd met de ligging t.o.v. de zon, heeft geresulteerd in een gesloten, naar de ‘stad’ gerichte noord-oost gevel en een op het ‘land’ georiënteerde open zuid-west gevel.

Architectonisch
Het ontwerp bestaat uit een verhoogd plateau waarop een uit 3 woonlagen opgetrokken gebouw is geplaatst. De bolle kant is gericht op het ‘land’ terwijl de holle kant zich aan de kant van de stad bevind. Het bouwblok biedt huisvesting aan 18 luxe appartementen, 6 per laag met ieder een eigen berging op de betreffende verdieping. Alle woningen worden ontsloten via een inpandige corridor die uitkomt op een grote, 3 verdiepingen tellende hoge centrale hal. De half verdiepte parkeervoorzieningen aan de noordzijde van het gebouw wordt aan het zicht vanaf de straat onttrokken door het verhoogd plateau. Hierachter bevindt zich ook de gemeenschappelijke fietsenberging.
Het thema van gesloten naar de ‘stad’ en open naar het ‘land’ is doorgezet in de hoofdvorm van het woongebouw (flauwe kromming), de plattegrond van de appartementen (technische voorzieningen en bergingen geprojecteerd aan de gesloten en verblijfsruimten aan de open zijde) en de wijze waarop de gevels zijn vormgegeven (transparant naar het ‘land’ en massief naar de ‘stad’.


Terug naar overzicht